物件検索
こだわり条件(3つまで選択可)
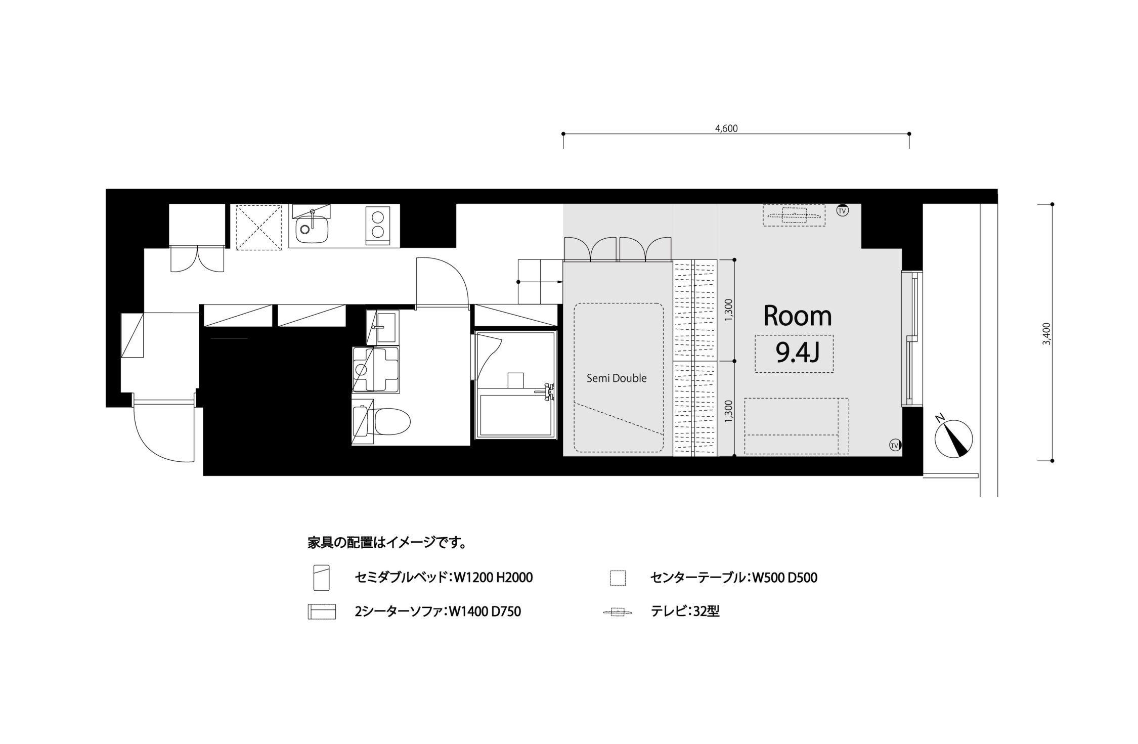
CABIN 008 蔵前
CABIN 008 蔵前
賃料 128,000 円
管理費 10,000 円
34.79m²・10階部分
都営浅草線「蔵前」駅 徒歩2分
下町風情の残る蔵前エリア。古い建物のあいだに新しいカルチャーが自然と根づき、気の利いた店やギャラリーが点在するこの街に、リノベーションシリーズ「CABIN」の部屋があります。山小屋のような包まれ感と、都市のワンルームらしい軽やかさを重ねた、遊び心のある一室に仕上がりました。玄関を上がると、白く整えた躯体壁とやわらかな木の表情が迎えてくれます。キッチンを擁する長めの廊下には、可動棚をたっぷりと設け、道具や本、日用品を使いやすく収められる余白を確保。キッチンはステンレス天板ですっきりと仕上げ、ラフな素材感の中にも端正な印象を添えています。居室に入るとまず目を引くのは、床を一段上げてつくったおこもりスペース。天井や壁にも木をあしらい、山小屋のような包まれ感を持たせながら、その下部にはしっかりと収納を忍ばせました。同じ部屋の中でも高さを変えることで、リビングスペースとは異なるもうひとつの居場所が生まれています。読書をしたり、考えごとをしたり、ラフに寝転んだり。その使い方は、住み手次第です。おこもりスペースと居室のあいだには、オープンクローゼットを配置。服や道具を掛けても視線が抜けるつくりなので、収納でありながら空間を仕切る存在としても機能します。しまうだけでなく、見せることも楽しめるこの仕様が、部屋全体に軽やかなリズムを生んでいます。こもる時間も、広げる時間も、どちらも大切にできる。蔵前の街に似合う、CABINらしい自由な暮らしがここにあります。
※事務所利用の場合は、賃料・管理費・礼金が課税、敷金は2ヵ月分頂戴いたします。
※入居者様が学生の場合、初回保証料の『学生割引』の適用もございます。詳しくは、お問い合わせください。
《保証会社加入について》
提携保証会社にご加入いただきます。初回保証料につきましては、初期費用支払い時にお支払いいただきます。(初回保証料=月額賃料等の50%~)
参考初期費用 内訳
お部屋の詳しい場所はお申込後にお知らせいたします
CABIN
CABIN 008 蔵前
賃料 128,000円管理費 10,000円
入居中のお問合せ
